• Toulouse - 2006
    Concours
    Architectes associés Fabre - Perrottet

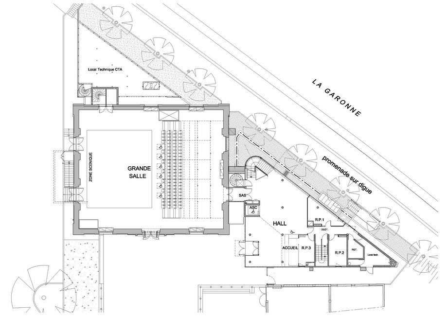
    Opération complexe de restructuration-extension regroupant 4 bâtiments :

    Le Bâtiment A. Théâtre - 350 places - bâtiment du XIXème siècle affecté alors au Service des Eaux.
    Travaux de restructuration avec rehausse de la toiture, traitement acoustique, création d’un gril, ventilation, excavation d’un sous-sol pour local atelier, restructuration des voûtes pour aménagement des loges et valorisation des ouvrages hydrauliques.

    Le Bâtiment B. Bâtiment neuf - base triangulaire, façade et terrasse sur la Garonne. Accueil - foyer bar - bureaux. Ce bâtiment est connecté à tous les niveaux au bâtiment Théâtre. Le choix de la transparence est lié à la situation du bâtiment et à son rapport à l’eau.
    A l’intérieur, elle brouille la lecture, l’architecture devient abstraction.

    Le Bâtiment C. Atelier répétitions - ancien bâtiment du XIXème siècle affecté au Service des Eaux - réhabilitation totale.

    Le Bâtiment D. Bâtiment industriel du XXème - travaux lourds pour aménagement d’une salle de spectacles, loges, atelier costumes, création d’une enveloppe acoustique à l’intérieur du volume et mise en place d'un gril.

    Théâtre Garonne_

    Maître d’ouvrage : Ville de Toulouse.
    Maîtrise d’oeuvre : Atelier 13 mandataire.
    Arch. assoc. Perrottet/Fabre BetIngérop, Batiserf.
    Capri Acoustique - scéno. Changement à vue - Economiste Forgue.
    Surface : 3734m² ( 4 bâtiments neufs et à restructurer ).
    Procédure négociée 2002.
    Achèvement 2006.
    Crédit photos : R. César.

    Théâtre Garonne_Image 1
  • Toulouse - 2006
    Concours
    Architectes associés Fabre - Perrottet

    Opération complexe de restructuration-extension regroupant 4 bâtiments :

    Le Bâtiment A. Théâtre - 350 places - bâtiment du XIXème siècle affecté alors au Service des Eaux.
    Travaux de restructuration avec rehausse de la toiture, traitement acoustique, création d’un gril, ventilation, excavation d’un sous-sol pour local atelier, restructuration des voûtes pour aménagement des loges et valorisation des ouvrages hydrauliques.

    Le Bâtiment B. Bâtiment neuf - base triangulaire, façade et terrasse sur la Garonne. Accueil - foyer bar - bureaux. Ce bâtiment est connecté à tous les niveaux au bâtiment Théâtre. Le choix de la transparence est lié à la situation du bâtiment et à son rapport à l’eau.
    A l’intérieur, elle brouille la lecture, l’architecture devient abstraction.

    Le Bâtiment C. Atelier répétitions - ancien bâtiment du XIXème siècle affecté au Service des Eaux - réhabilitation totale.

    Le Bâtiment D. Bâtiment industriel du XXème - travaux lourds pour aménagement d’une salle de spectacles, loges, atelier costumes, création d’une enveloppe acoustique à l’intérieur du volume et mise en place d'un gril.

    Théâtre Garonne_

    Maître d’ouvrage : Ville de Toulouse.
    Maîtrise d’oeuvre : Atelier 13 mandataire.
    Arch. assoc. Perrottet/Fabre BetIngérop, Batiserf.
    Capri Acoustique - scéno. Changement à vue - Economiste Forgue.
    Surface : 3734m² ( 4 bâtiments neufs et à restructurer ).
    Procédure négociée 2002.
    Achèvement 2006.
    Crédit photos : R. César.

    Théâtre Garonne_Image 2
  • Toulouse - 2006
    Concours
    Architectes associés Fabre - Perrottet

    Opération complexe de restructuration-extension regroupant 4 bâtiments :

    Le Bâtiment A. Théâtre - 350 places - bâtiment du XIXème siècle affecté alors au Service des Eaux.
    Travaux de restructuration avec rehausse de la toiture, traitement acoustique, création d’un gril, ventilation, excavation d’un sous-sol pour local atelier, restructuration des voûtes pour aménagement des loges et valorisation des ouvrages hydrauliques.

    Le Bâtiment B. Bâtiment neuf - base triangulaire, façade et terrasse sur la Garonne. Accueil - foyer bar - bureaux. Ce bâtiment est connecté à tous les niveaux au bâtiment Théâtre. Le choix de la transparence est lié à la situation du bâtiment et à son rapport à l’eau.
    A l’intérieur, elle brouille la lecture, l’architecture devient abstraction.

    Le Bâtiment C. Atelier répétitions - ancien bâtiment du XIXème siècle affecté au Service des Eaux - réhabilitation totale.

    Le Bâtiment D. Bâtiment industriel du XXème - travaux lourds pour aménagement d’une salle de spectacles, loges, atelier costumes, création d’une enveloppe acoustique à l’intérieur du volume et mise en place d'un gril.

    Théâtre Garonne_

    Maître d’ouvrage : Ville de Toulouse.
    Maîtrise d’oeuvre : Atelier 13 mandataire.
    Arch. assoc. Perrottet/Fabre BetIngérop, Batiserf.
    Capri Acoustique - scéno. Changement à vue - Economiste Forgue.
    Surface : 3734m² ( 4 bâtiments neufs et à restructurer ).
    Procédure négociée 2002.
    Achèvement 2006.
    Crédit photos : R. César.

    Théâtre Garonne_Etat des lieux
  • Toulouse - 2006
    Concours
    Architectes associés Fabre - Perrottet

    Opération complexe de restructuration-extension regroupant 4 bâtiments :

    Le Bâtiment A. Théâtre - 350 places - bâtiment du XIXème siècle affecté alors au Service des Eaux.
    Travaux de restructuration avec rehausse de la toiture, traitement acoustique, création d’un gril, ventilation, excavation d’un sous-sol pour local atelier, restructuration des voûtes pour aménagement des loges et valorisation des ouvrages hydrauliques.

    Le Bâtiment B. Bâtiment neuf - base triangulaire, façade et terrasse sur la Garonne. Accueil - foyer bar - bureaux. Ce bâtiment est connecté à tous les niveaux au bâtiment Théâtre. Le choix de la transparence est lié à la situation du bâtiment et à son rapport à l’eau.
    A l’intérieur, elle brouille la lecture, l’architecture devient abstraction.

    Le Bâtiment C. Atelier répétitions - ancien bâtiment du XIXème siècle affecté au Service des Eaux - réhabilitation totale.

    Le Bâtiment D. Bâtiment industriel du XXème - travaux lourds pour aménagement d’une salle de spectacles, loges, atelier costumes, création d’une enveloppe acoustique à l’intérieur du volume et mise en place d'un gril.

    Théâtre Garonne_

    Maître d’ouvrage : Ville de Toulouse.
    Maîtrise d’oeuvre : Atelier 13 mandataire.
    Arch. assoc. Perrottet/Fabre BetIngérop, Batiserf.
    Capri Acoustique - scéno. Changement à vue - Economiste Forgue.
    Surface : 3734m² ( 4 bâtiments neufs et à restructurer ).
    Procédure négociée 2002.
    Achèvement 2006.
    Crédit photos : R. César.

    Théâtre Garonne_Image 6
  • Toulouse - 2006
    Concours
    Architectes associés Fabre - Perrottet

    Opération complexe de restructuration-extension regroupant 4 bâtiments :

    Le Bâtiment A. Théâtre - 350 places - bâtiment du XIXème siècle affecté alors au Service des Eaux.
    Travaux de restructuration avec rehausse de la toiture, traitement acoustique, création d’un gril, ventilation, excavation d’un sous-sol pour local atelier, restructuration des voûtes pour aménagement des loges et valorisation des ouvrages hydrauliques.

    Le Bâtiment B. Bâtiment neuf - base triangulaire, façade et terrasse sur la Garonne. Accueil - foyer bar - bureaux. Ce bâtiment est connecté à tous les niveaux au bâtiment Théâtre. Le choix de la transparence est lié à la situation du bâtiment et à son rapport à l’eau.
    A l’intérieur, elle brouille la lecture, l’architecture devient abstraction.

    Le Bâtiment C. Atelier répétitions - ancien bâtiment du XIXème siècle affecté au Service des Eaux - réhabilitation totale.

    Le Bâtiment D. Bâtiment industriel du XXème - travaux lourds pour aménagement d’une salle de spectacles, loges, atelier costumes, création d’une enveloppe acoustique à l’intérieur du volume et mise en place d'un gril.

    Théâtre Garonne_

    Maître d’ouvrage : Ville de Toulouse.
    Maîtrise d’oeuvre : Atelier 13 mandataire.
    Arch. assoc. Perrottet/Fabre BetIngérop, Batiserf.
    Capri Acoustique - scéno. Changement à vue - Economiste Forgue.
    Surface : 3734m² ( 4 bâtiments neufs et à restructurer ).
    Procédure négociée 2002.
    Achèvement 2006.
    Crédit photos : R. César.

    Théâtre Garonne_Image 7
  • Toulouse - 2006
    Concours
    Architectes associés Fabre - Perrottet

    Opération complexe de restructuration-extension regroupant 4 bâtiments :

    Le Bâtiment A. Théâtre - 350 places - bâtiment du XIXème siècle affecté alors au Service des Eaux.
    Travaux de restructuration avec rehausse de la toiture, traitement acoustique, création d’un gril, ventilation, excavation d’un sous-sol pour local atelier, restructuration des voûtes pour aménagement des loges et valorisation des ouvrages hydrauliques.

    Le Bâtiment B. Bâtiment neuf - base triangulaire, façade et terrasse sur la Garonne. Accueil - foyer bar - bureaux. Ce bâtiment est connecté à tous les niveaux au bâtiment Théâtre. Le choix de la transparence est lié à la situation du bâtiment et à son rapport à l’eau.
    A l’intérieur, elle brouille la lecture, l’architecture devient abstraction.

    Le Bâtiment C. Atelier répétitions - ancien bâtiment du XIXème siècle affecté au Service des Eaux - réhabilitation totale.

    Le Bâtiment D. Bâtiment industriel du XXème - travaux lourds pour aménagement d’une salle de spectacles, loges, atelier costumes, création d’une enveloppe acoustique à l’intérieur du volume et mise en place d'un gril.

    Théâtre Garonne_

    Maître d’ouvrage : Ville de Toulouse.
    Maîtrise d’oeuvre : Atelier 13 mandataire.
    Arch. assoc. Perrottet/Fabre BetIngérop, Batiserf.
    Capri Acoustique - scéno. Changement à vue - Economiste Forgue.
    Surface : 3734m² ( 4 bâtiments neufs et à restructurer ).
    Procédure négociée 2002.
    Achèvement 2006.
    Crédit photos : R. César.

    Théâtre Garonne_Image 8
  • Toulouse - 2006
    Concours
    Architectes associés Fabre - Perrottet

    Opération complexe de restructuration-extension regroupant 4 bâtiments :

    Le Bâtiment A. Théâtre - 350 places - bâtiment du XIXème siècle affecté alors au Service des Eaux.
    Travaux de restructuration avec rehausse de la toiture, traitement acoustique, création d’un gril, ventilation, excavation d’un sous-sol pour local atelier, restructuration des voûtes pour aménagement des loges et valorisation des ouvrages hydrauliques.

    Le Bâtiment B. Bâtiment neuf - base triangulaire, façade et terrasse sur la Garonne. Accueil - foyer bar - bureaux. Ce bâtiment est connecté à tous les niveaux au bâtiment Théâtre. Le choix de la transparence est lié à la situation du bâtiment et à son rapport à l’eau.
    A l’intérieur, elle brouille la lecture, l’architecture devient abstraction.

    Le Bâtiment C. Atelier répétitions - ancien bâtiment du XIXème siècle affecté au Service des Eaux - réhabilitation totale.

    Le Bâtiment D. Bâtiment industriel du XXème - travaux lourds pour aménagement d’une salle de spectacles, loges, atelier costumes, création d’une enveloppe acoustique à l’intérieur du volume et mise en place d'un gril.

    Théâtre Garonne_

    Maître d’ouvrage : Ville de Toulouse.
    Maîtrise d’oeuvre : Atelier 13 mandataire.
    Arch. assoc. Perrottet/Fabre BetIngérop, Batiserf.
    Capri Acoustique - scéno. Changement à vue - Economiste Forgue.
    Surface : 3734m² ( 4 bâtiments neufs et à restructurer ).
    Procédure négociée 2002.
    Achèvement 2006.
    Crédit photos : R. César.

    Théâtre Garonne_Image 9
  • Toulouse - 2006
    Concours
    Architectes associés Fabre - Perrottet

    Opération complexe de restructuration-extension regroupant 4 bâtiments :

    Le Bâtiment A. Théâtre - 350 places - bâtiment du XIXème siècle affecté alors au Service des Eaux.
    Travaux de restructuration avec rehausse de la toiture, traitement acoustique, création d’un gril, ventilation, excavation d’un sous-sol pour local atelier, restructuration des voûtes pour aménagement des loges et valorisation des ouvrages hydrauliques.

    Le Bâtiment B. Bâtiment neuf - base triangulaire, façade et terrasse sur la Garonne. Accueil - foyer bar - bureaux. Ce bâtiment est connecté à tous les niveaux au bâtiment Théâtre. Le choix de la transparence est lié à la situation du bâtiment et à son rapport à l’eau.
    A l’intérieur, elle brouille la lecture, l’architecture devient abstraction.

    Le Bâtiment C. Atelier répétitions - ancien bâtiment du XIXème siècle affecté au Service des Eaux - réhabilitation totale.

    Le Bâtiment D. Bâtiment industriel du XXème - travaux lourds pour aménagement d’une salle de spectacles, loges, atelier costumes, création d’une enveloppe acoustique à l’intérieur du volume et mise en place d'un gril.

    Théâtre Garonne_

    Maître d’ouvrage : Ville de Toulouse.
    Maîtrise d’oeuvre : Atelier 13 mandataire.
    Arch. assoc. Perrottet/Fabre BetIngérop, Batiserf.
    Capri Acoustique - scéno. Changement à vue - Economiste Forgue.
    Surface : 3734m² ( 4 bâtiments neufs et à restructurer ).
    Procédure négociée 2002.
    Achèvement 2006.
    Crédit photos : R. César.

    Théâtre Garonne_Image 10
  • Toulouse - 2006
    Concours
    Architectes associés Fabre - Perrottet

    Opération complexe de restructuration-extension regroupant 4 bâtiments :

    Le Bâtiment A. Théâtre - 350 places - bâtiment du XIXème siècle affecté alors au Service des Eaux.
    Travaux de restructuration avec rehausse de la toiture, traitement acoustique, création d’un gril, ventilation, excavation d’un sous-sol pour local atelier, restructuration des voûtes pour aménagement des loges et valorisation des ouvrages hydrauliques.

    Le Bâtiment B. Bâtiment neuf - base triangulaire, façade et terrasse sur la Garonne. Accueil - foyer bar - bureaux. Ce bâtiment est connecté à tous les niveaux au bâtiment Théâtre. Le choix de la transparence est lié à la situation du bâtiment et à son rapport à l’eau.
    A l’intérieur, elle brouille la lecture, l’architecture devient abstraction.

    Le Bâtiment C. Atelier répétitions - ancien bâtiment du XIXème siècle affecté au Service des Eaux - réhabilitation totale.

    Le Bâtiment D. Bâtiment industriel du XXème - travaux lourds pour aménagement d’une salle de spectacles, loges, atelier costumes, création d’une enveloppe acoustique à l’intérieur du volume et mise en place d'un gril.

    Théâtre Garonne_

    Maître d’ouvrage : Ville de Toulouse.
    Maîtrise d’oeuvre : Atelier 13 mandataire.
    Arch. assoc. Perrottet/Fabre BetIngérop, Batiserf.
    Capri Acoustique - scéno. Changement à vue - Economiste Forgue.
    Surface : 3734m² ( 4 bâtiments neufs et à restructurer ).
    Procédure négociée 2002.
    Achèvement 2006.
    Crédit photos : R. César.

    Théâtre Garonne_Image 11
  • Toulouse - 2006
    Concours
    Architectes associés Fabre - Perrottet

    Opération complexe de restructuration-extension regroupant 4 bâtiments :

    Le Bâtiment A. Théâtre - 350 places - bâtiment du XIXème siècle affecté alors au Service des Eaux.
    Travaux de restructuration avec rehausse de la toiture, traitement acoustique, création d’un gril, ventilation, excavation d’un sous-sol pour local atelier, restructuration des voûtes pour aménagement des loges et valorisation des ouvrages hydrauliques.

    Le Bâtiment B. Bâtiment neuf - base triangulaire, façade et terrasse sur la Garonne. Accueil - foyer bar - bureaux. Ce bâtiment est connecté à tous les niveaux au bâtiment Théâtre. Le choix de la transparence est lié à la situation du bâtiment et à son rapport à l’eau.
    A l’intérieur, elle brouille la lecture, l’architecture devient abstraction.

    Le Bâtiment C. Atelier répétitions - ancien bâtiment du XIXème siècle affecté au Service des Eaux - réhabilitation totale.

    Le Bâtiment D. Bâtiment industriel du XXème - travaux lourds pour aménagement d’une salle de spectacles, loges, atelier costumes, création d’une enveloppe acoustique à l’intérieur du volume et mise en place d'un gril.

    Théâtre Garonne_

    Maître d’ouvrage : Ville de Toulouse.
    Maîtrise d’oeuvre : Atelier 13 mandataire.
    Arch. assoc. Perrottet/Fabre BetIngérop, Batiserf.
    Capri Acoustique - scéno. Changement à vue - Economiste Forgue.
    Surface : 3734m² ( 4 bâtiments neufs et à restructurer ).
    Procédure négociée 2002.
    Achèvement 2006.
    Crédit photos : R. César.

    Théâtre Garonne_Image 12
  • Toulouse - 2006
    Concours
    Architectes associés Fabre - Perrottet

    Opération complexe de restructuration-extension regroupant 4 bâtiments :

    Le Bâtiment A. Théâtre - 350 places - bâtiment du XIXème siècle affecté alors au Service des Eaux.
    Travaux de restructuration avec rehausse de la toiture, traitement acoustique, création d’un gril, ventilation, excavation d’un sous-sol pour local atelier, restructuration des voûtes pour aménagement des loges et valorisation des ouvrages hydrauliques.

    Le Bâtiment B. Bâtiment neuf - base triangulaire, façade et terrasse sur la Garonne. Accueil - foyer bar - bureaux. Ce bâtiment est connecté à tous les niveaux au bâtiment Théâtre. Le choix de la transparence est lié à la situation du bâtiment et à son rapport à l’eau.
    A l’intérieur, elle brouille la lecture, l’architecture devient abstraction.

    Le Bâtiment C. Atelier répétitions - ancien bâtiment du XIXème siècle affecté au Service des Eaux - réhabilitation totale.

    Le Bâtiment D. Bâtiment industriel du XXème - travaux lourds pour aménagement d’une salle de spectacles, loges, atelier costumes, création d’une enveloppe acoustique à l’intérieur du volume et mise en place d'un gril.

    Théâtre Garonne_

    Maître d’ouvrage : Ville de Toulouse.
    Maîtrise d’oeuvre : Atelier 13 mandataire.
    Arch. assoc. Perrottet/Fabre BetIngérop, Batiserf.
    Capri Acoustique - scéno. Changement à vue - Economiste Forgue.
    Surface : 3734m² ( 4 bâtiments neufs et à restructurer ).
    Procédure négociée 2002.
    Achèvement 2006.
    Crédit photos : R. César.

    Théâtre Garonne_Image 13
  • Toulouse - 2006
    Concours
    Architectes associés Fabre - Perrottet

    Opération complexe de restructuration-extension regroupant 4 bâtiments :

    Le Bâtiment A. Théâtre - 350 places - bâtiment du XIXème siècle affecté alors au Service des Eaux.
    Travaux de restructuration avec rehausse de la toiture, traitement acoustique, création d’un gril, ventilation, excavation d’un sous-sol pour local atelier, restructuration des voûtes pour aménagement des loges et valorisation des ouvrages hydrauliques.

    Le Bâtiment B. Bâtiment neuf - base triangulaire, façade et terrasse sur la Garonne. Accueil - foyer bar - bureaux. Ce bâtiment est connecté à tous les niveaux au bâtiment Théâtre. Le choix de la transparence est lié à la situation du bâtiment et à son rapport à l’eau.
    A l’intérieur, elle brouille la lecture, l’architecture devient abstraction.

    Le Bâtiment C. Atelier répétitions - ancien bâtiment du XIXème siècle affecté au Service des Eaux - réhabilitation totale.

    Le Bâtiment D. Bâtiment industriel du XXème - travaux lourds pour aménagement d’une salle de spectacles, loges, atelier costumes, création d’une enveloppe acoustique à l’intérieur du volume et mise en place d'un gril.

    Théâtre Garonne_

    Maître d’ouvrage : Ville de Toulouse.
    Maîtrise d’oeuvre : Atelier 13 mandataire.
    Arch. assoc. Perrottet/Fabre BetIngérop, Batiserf.
    Capri Acoustique - scéno. Changement à vue - Economiste Forgue.
    Surface : 3734m² ( 4 bâtiments neufs et à restructurer ).
    Procédure négociée 2002.
    Achèvement 2006.
    Crédit photos : R. César.

    Théâtre Garonne_Image 14
  • Toulouse - 2006
    Concours
    Architectes associés Fabre - Perrottet

    Opération complexe de restructuration-extension regroupant 4 bâtiments :

    Le Bâtiment A. Théâtre - 350 places - bâtiment du XIXème siècle affecté alors au Service des Eaux.
    Travaux de restructuration avec rehausse de la toiture, traitement acoustique, création d’un gril, ventilation, excavation d’un sous-sol pour local atelier, restructuration des voûtes pour aménagement des loges et valorisation des ouvrages hydrauliques.

    Le Bâtiment B. Bâtiment neuf - base triangulaire, façade et terrasse sur la Garonne. Accueil - foyer bar - bureaux. Ce bâtiment est connecté à tous les niveaux au bâtiment Théâtre. Le choix de la transparence est lié à la situation du bâtiment et à son rapport à l’eau.
    A l’intérieur, elle brouille la lecture, l’architecture devient abstraction.

    Le Bâtiment C. Atelier répétitions - ancien bâtiment du XIXème siècle affecté au Service des Eaux - réhabilitation totale.

    Le Bâtiment D. Bâtiment industriel du XXème - travaux lourds pour aménagement d’une salle de spectacles, loges, atelier costumes, création d’une enveloppe acoustique à l’intérieur du volume et mise en place d'un gril.

    Théâtre Garonne_

    Maître d’ouvrage : Ville de Toulouse.
    Maîtrise d’oeuvre : Atelier 13 mandataire.
    Arch. assoc. Perrottet/Fabre BetIngérop, Batiserf.
    Capri Acoustique - scéno. Changement à vue - Economiste Forgue.
    Surface : 3734m² ( 4 bâtiments neufs et à restructurer ).
    Procédure négociée 2002.
    Achèvement 2006.
    Crédit photos : R. César.

    Théâtre Garonne_Image 15
  • Toulouse - 2006
    Concours
    Architectes associés Fabre - Perrottet

    Opération complexe de restructuration-extension regroupant 4 bâtiments :

    Le Bâtiment A. Théâtre - 350 places - bâtiment du XIXème siècle affecté alors au Service des Eaux.
    Travaux de restructuration avec rehausse de la toiture, traitement acoustique, création d’un gril, ventilation, excavation d’un sous-sol pour local atelier, restructuration des voûtes pour aménagement des loges et valorisation des ouvrages hydrauliques.

    Le Bâtiment B. Bâtiment neuf - base triangulaire, façade et terrasse sur la Garonne. Accueil - foyer bar - bureaux. Ce bâtiment est connecté à tous les niveaux au bâtiment Théâtre. Le choix de la transparence est lié à la situation du bâtiment et à son rapport à l’eau.
    A l’intérieur, elle brouille la lecture, l’architecture devient abstraction.

    Le Bâtiment C. Atelier répétitions - ancien bâtiment du XIXème siècle affecté au Service des Eaux - réhabilitation totale.

    Le Bâtiment D. Bâtiment industriel du XXème - travaux lourds pour aménagement d’une salle de spectacles, loges, atelier costumes, création d’une enveloppe acoustique à l’intérieur du volume et mise en place d'un gril.

    Théâtre Garonne_

    Maître d’ouvrage : Ville de Toulouse.
    Maîtrise d’oeuvre : Atelier 13 mandataire.
    Arch. assoc. Perrottet/Fabre BetIngérop, Batiserf.
    Capri Acoustique - scéno. Changement à vue - Economiste Forgue.
    Surface : 3734m² ( 4 bâtiments neufs et à restructurer ).
    Procédure négociée 2002.
    Achèvement 2006.
    Crédit photos : R. César.

    Théâtre Garonne_Image 16
  • Toulouse - 2006
    Concours
    Architectes associés Fabre - Perrottet

    Opération complexe de restructuration-extension regroupant 4 bâtiments :

    Le Bâtiment A. Théâtre - 350 places - bâtiment du XIXème siècle affecté alors au Service des Eaux.
    Travaux de restructuration avec rehausse de la toiture, traitement acoustique, création d’un gril, ventilation, excavation d’un sous-sol pour local atelier, restructuration des voûtes pour aménagement des loges et valorisation des ouvrages hydrauliques.

    Le Bâtiment B. Bâtiment neuf - base triangulaire, façade et terrasse sur la Garonne. Accueil - foyer bar - bureaux. Ce bâtiment est connecté à tous les niveaux au bâtiment Théâtre. Le choix de la transparence est lié à la situation du bâtiment et à son rapport à l’eau.
    A l’intérieur, elle brouille la lecture, l’architecture devient abstraction.

    Le Bâtiment C. Atelier répétitions - ancien bâtiment du XIXème siècle affecté au Service des Eaux - réhabilitation totale.

    Le Bâtiment D. Bâtiment industriel du XXème - travaux lourds pour aménagement d’une salle de spectacles, loges, atelier costumes, création d’une enveloppe acoustique à l’intérieur du volume et mise en place d'un gril.

    Théâtre Garonne_

    Maître d’ouvrage : Ville de Toulouse.
    Maîtrise d’oeuvre : Atelier 13 mandataire.
    Arch. assoc. Perrottet/Fabre BetIngérop, Batiserf.
    Capri Acoustique - scéno. Changement à vue - Economiste Forgue.
    Surface : 3734m² ( 4 bâtiments neufs et à restructurer ).
    Procédure négociée 2002.
    Achèvement 2006.
    Crédit photos : R. César.

    Théâtre Garonne_Image 17
  • Toulouse - 2006
    Concours
    Architectes associés Fabre - Perrottet

    Opération complexe de restructuration-extension regroupant 4 bâtiments :

    Le Bâtiment A. Théâtre - 350 places - bâtiment du XIXème siècle affecté alors au Service des Eaux.
    Travaux de restructuration avec rehausse de la toiture, traitement acoustique, création d’un gril, ventilation, excavation d’un sous-sol pour local atelier, restructuration des voûtes pour aménagement des loges et valorisation des ouvrages hydrauliques.

    Le Bâtiment B. Bâtiment neuf - base triangulaire, façade et terrasse sur la Garonne. Accueil - foyer bar - bureaux. Ce bâtiment est connecté à tous les niveaux au bâtiment Théâtre. Le choix de la transparence est lié à la situation du bâtiment et à son rapport à l’eau.
    A l’intérieur, elle brouille la lecture, l’architecture devient abstraction.

    Le Bâtiment C. Atelier répétitions - ancien bâtiment du XIXème siècle affecté au Service des Eaux - réhabilitation totale.

    Le Bâtiment D. Bâtiment industriel du XXème - travaux lourds pour aménagement d’une salle de spectacles, loges, atelier costumes, création d’une enveloppe acoustique à l’intérieur du volume et mise en place d'un gril.

    Théâtre Garonne_

    Maître d’ouvrage : Ville de Toulouse.
    Maîtrise d’oeuvre : Atelier 13 mandataire.
    Arch. assoc. Perrottet/Fabre BetIngérop, Batiserf.
    Capri Acoustique - scéno. Changement à vue - Economiste Forgue.
    Surface : 3734m² ( 4 bâtiments neufs et à restructurer ).
    Procédure négociée 2002.
    Achèvement 2006.
    Crédit photos : R. César.

    Théâtre Garonne_Image 18
  • Toulouse - 2006
    Concours
    Architectes associés Fabre - Perrottet

    Opération complexe de restructuration-extension regroupant 4 bâtiments :

    Le Bâtiment A. Théâtre - 350 places - bâtiment du XIXème siècle affecté alors au Service des Eaux.
    Travaux de restructuration avec rehausse de la toiture, traitement acoustique, création d’un gril, ventilation, excavation d’un sous-sol pour local atelier, restructuration des voûtes pour aménagement des loges et valorisation des ouvrages hydrauliques.

    Le Bâtiment B. Bâtiment neuf - base triangulaire, façade et terrasse sur la Garonne. Accueil - foyer bar - bureaux. Ce bâtiment est connecté à tous les niveaux au bâtiment Théâtre. Le choix de la transparence est lié à la situation du bâtiment et à son rapport à l’eau.
    A l’intérieur, elle brouille la lecture, l’architecture devient abstraction.

    Le Bâtiment C. Atelier répétitions - ancien bâtiment du XIXème siècle affecté au Service des Eaux - réhabilitation totale.

    Le Bâtiment D. Bâtiment industriel du XXème - travaux lourds pour aménagement d’une salle de spectacles, loges, atelier costumes, création d’une enveloppe acoustique à l’intérieur du volume et mise en place d'un gril.

    Théâtre Garonne_

    Maître d’ouvrage : Ville de Toulouse.
    Maîtrise d’oeuvre : Atelier 13 mandataire.
    Arch. assoc. Perrottet/Fabre BetIngérop, Batiserf.
    Capri Acoustique - scéno. Changement à vue - Economiste Forgue.
    Surface : 3734m² ( 4 bâtiments neufs et à restructurer ).
    Procédure négociée 2002.
    Achèvement 2006.
    Crédit photos : R. César.

    Théâtre Garonne_Image 19