• Toulouse - 2007
    Consultation

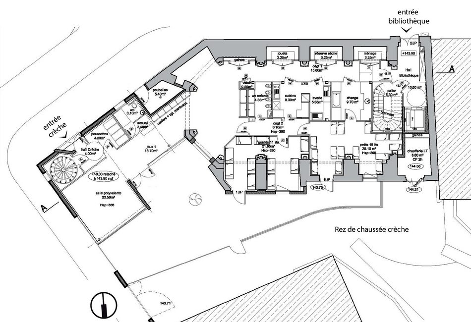
    Reconversion et extension d’une chapelle fin XIXème siècle en 2 équipements autonomes : une bibliothèque et une crèche associative.

    La bibliothèque s’installe dans la chapelle ainsi qu’une partie de la crèche. La chapelle garde ses caractéristiques principales, un double volume jusqu’aux voûtes ainsi que la totalité de ses vitraux qui ont été refaits. La crèche a nécessité une extension : le volume créé, ainsi que le portique en prolongement, permettent un traitement urbain de l’angle de la place.

    Crèche et bibliothèque associative_

    Maître d’ouvrage : Ville de Toulouse.
    Maîtrise d’oeuvre : Atelier 13 mandataire - Bet Betem.
    Surface : 630m².
    Procédure négociée 2004.
    Achèvement 2007.
    Crédit photos : J.-Ph. Loupiac - N. Roux Loupiac.

    Crèche et bibliothèque associative_Image 1
  • Toulouse - 2007
    Consultation

    Reconversion et extension d’une chapelle fin XIXème siècle en 2 équipements autonomes : une bibliothèque et une crèche associative.

    La bibliothèque s’installe dans la chapelle ainsi qu’une partie de la crèche. La chapelle garde ses caractéristiques principales, un double volume jusqu’aux voûtes ainsi que la totalité de ses vitraux qui ont été refaits. La crèche a nécessité une extension : le volume créé, ainsi que le portique en prolongement, permettent un traitement urbain de l’angle de la place.

    Crèche et bibliothèque associative_

    Maître d’ouvrage : Ville de Toulouse.
    Maîtrise d’oeuvre : Atelier 13 mandataire - Bet Betem.
    Surface : 630m².
    Procédure négociée 2004.
    Achèvement 2007.
    Crédit photos : J.-Ph. Loupiac - N. Roux Loupiac.

    Crèche et bibliothèque associative_Image 15
  • Toulouse - 2007
    Consultation

    Reconversion et extension d’une chapelle fin XIXème siècle en 2 équipements autonomes : une bibliothèque et une crèche associative.

    La bibliothèque s’installe dans la chapelle ainsi qu’une partie de la crèche. La chapelle garde ses caractéristiques principales, un double volume jusqu’aux voûtes ainsi que la totalité de ses vitraux qui ont été refaits. La crèche a nécessité une extension : le volume créé, ainsi que le portique en prolongement, permettent un traitement urbain de l’angle de la place.

    Crèche et bibliothèque associative_

    Maître d’ouvrage : Ville de Toulouse.
    Maîtrise d’oeuvre : Atelier 13 mandataire - Bet Betem.
    Surface : 630m².
    Procédure négociée 2004.
    Achèvement 2007.
    Crédit photos : J.-Ph. Loupiac - N. Roux Loupiac.

    Crèche et bibliothèque associative_Image 2
  • Toulouse - 2007
    Consultation

    Reconversion et extension d’une chapelle fin XIXème siècle en 2 équipements autonomes : une bibliothèque et une crèche associative.

    La bibliothèque s’installe dans la chapelle ainsi qu’une partie de la crèche. La chapelle garde ses caractéristiques principales, un double volume jusqu’aux voûtes ainsi que la totalité de ses vitraux qui ont été refaits. La crèche a nécessité une extension : le volume créé, ainsi que le portique en prolongement, permettent un traitement urbain de l’angle de la place.

    Crèche et bibliothèque associative_

    Maître d’ouvrage : Ville de Toulouse.
    Maîtrise d’oeuvre : Atelier 13 mandataire - Bet Betem.
    Surface : 630m².
    Procédure négociée 2004.
    Achèvement 2007.
    Crédit photos : J.-Ph. Loupiac - N. Roux Loupiac.

    Crèche et bibliothèque associative_Etat des lieux
  • Toulouse - 2007
    Consultation

    Reconversion et extension d’une chapelle fin XIXème siècle en 2 équipements autonomes : une bibliothèque et une crèche associative.

    La bibliothèque s’installe dans la chapelle ainsi qu’une partie de la crèche. La chapelle garde ses caractéristiques principales, un double volume jusqu’aux voûtes ainsi que la totalité de ses vitraux qui ont été refaits. La crèche a nécessité une extension : le volume créé, ainsi que le portique en prolongement, permettent un traitement urbain de l’angle de la place.

    Crèche et bibliothèque associative_

    Maître d’ouvrage : Ville de Toulouse.
    Maîtrise d’oeuvre : Atelier 13 mandataire - Bet Betem.
    Surface : 630m².
    Procédure négociée 2004.
    Achèvement 2007.
    Crédit photos : J.-Ph. Loupiac - N. Roux Loupiac.

    Crèche et bibliothèque associative_Image 7
  • Toulouse - 2007
    Consultation

    Reconversion et extension d’une chapelle fin XIXème siècle en 2 équipements autonomes : une bibliothèque et une crèche associative.

    La bibliothèque s’installe dans la chapelle ainsi qu’une partie de la crèche. La chapelle garde ses caractéristiques principales, un double volume jusqu’aux voûtes ainsi que la totalité de ses vitraux qui ont été refaits. La crèche a nécessité une extension : le volume créé, ainsi que le portique en prolongement, permettent un traitement urbain de l’angle de la place.

    Crèche et bibliothèque associative_

    Maître d’ouvrage : Ville de Toulouse.
    Maîtrise d’oeuvre : Atelier 13 mandataire - Bet Betem.
    Surface : 630m².
    Procédure négociée 2004.
    Achèvement 2007.
    Crédit photos : J.-Ph. Loupiac - N. Roux Loupiac.

    Crèche et bibliothèque associative_Image 8
  • Toulouse - 2007
    Consultation

    Reconversion et extension d’une chapelle fin XIXème siècle en 2 équipements autonomes : une bibliothèque et une crèche associative.

    La bibliothèque s’installe dans la chapelle ainsi qu’une partie de la crèche. La chapelle garde ses caractéristiques principales, un double volume jusqu’aux voûtes ainsi que la totalité de ses vitraux qui ont été refaits. La crèche a nécessité une extension : le volume créé, ainsi que le portique en prolongement, permettent un traitement urbain de l’angle de la place.

    Crèche et bibliothèque associative_

    Maître d’ouvrage : Ville de Toulouse.
    Maîtrise d’oeuvre : Atelier 13 mandataire - Bet Betem.
    Surface : 630m².
    Procédure négociée 2004.
    Achèvement 2007.
    Crédit photos : J.-Ph. Loupiac - N. Roux Loupiac.

    Crèche et bibliothèque associative_Image 9
  • Toulouse - 2007
    Consultation

    Reconversion et extension d’une chapelle fin XIXème siècle en 2 équipements autonomes : une bibliothèque et une crèche associative.

    La bibliothèque s’installe dans la chapelle ainsi qu’une partie de la crèche. La chapelle garde ses caractéristiques principales, un double volume jusqu’aux voûtes ainsi que la totalité de ses vitraux qui ont été refaits. La crèche a nécessité une extension : le volume créé, ainsi que le portique en prolongement, permettent un traitement urbain de l’angle de la place.

    Crèche et bibliothèque associative_

    Maître d’ouvrage : Ville de Toulouse.
    Maîtrise d’oeuvre : Atelier 13 mandataire - Bet Betem.
    Surface : 630m².
    Procédure négociée 2004.
    Achèvement 2007.
    Crédit photos : J.-Ph. Loupiac - N. Roux Loupiac.

    Crèche et bibliothèque associative_Image 10
  • Toulouse - 2007
    Consultation

    Reconversion et extension d’une chapelle fin XIXème siècle en 2 équipements autonomes : une bibliothèque et une crèche associative.

    La bibliothèque s’installe dans la chapelle ainsi qu’une partie de la crèche. La chapelle garde ses caractéristiques principales, un double volume jusqu’aux voûtes ainsi que la totalité de ses vitraux qui ont été refaits. La crèche a nécessité une extension : le volume créé, ainsi que le portique en prolongement, permettent un traitement urbain de l’angle de la place.

    Crèche et bibliothèque associative_

    Maître d’ouvrage : Ville de Toulouse.
    Maîtrise d’oeuvre : Atelier 13 mandataire - Bet Betem.
    Surface : 630m².
    Procédure négociée 2004.
    Achèvement 2007.
    Crédit photos : J.-Ph. Loupiac - N. Roux Loupiac.

    Crèche et bibliothèque associative_Image 11
  • Toulouse - 2007
    Consultation

    Reconversion et extension d’une chapelle fin XIXème siècle en 2 équipements autonomes : une bibliothèque et une crèche associative.

    La bibliothèque s’installe dans la chapelle ainsi qu’une partie de la crèche. La chapelle garde ses caractéristiques principales, un double volume jusqu’aux voûtes ainsi que la totalité de ses vitraux qui ont été refaits. La crèche a nécessité une extension : le volume créé, ainsi que le portique en prolongement, permettent un traitement urbain de l’angle de la place.

    Crèche et bibliothèque associative_

    Maître d’ouvrage : Ville de Toulouse.
    Maîtrise d’oeuvre : Atelier 13 mandataire - Bet Betem.
    Surface : 630m².
    Procédure négociée 2004.
    Achèvement 2007.
    Crédit photos : J.-Ph. Loupiac - N. Roux Loupiac.

    Crèche et bibliothèque associative_Image 12
  • Toulouse - 2007
    Consultation

    Reconversion et extension d’une chapelle fin XIXème siècle en 2 équipements autonomes : une bibliothèque et une crèche associative.

    La bibliothèque s’installe dans la chapelle ainsi qu’une partie de la crèche. La chapelle garde ses caractéristiques principales, un double volume jusqu’aux voûtes ainsi que la totalité de ses vitraux qui ont été refaits. La crèche a nécessité une extension : le volume créé, ainsi que le portique en prolongement, permettent un traitement urbain de l’angle de la place.

    Crèche et bibliothèque associative_

    Maître d’ouvrage : Ville de Toulouse.
    Maîtrise d’oeuvre : Atelier 13 mandataire - Bet Betem.
    Surface : 630m².
    Procédure négociée 2004.
    Achèvement 2007.
    Crédit photos : J.-Ph. Loupiac - N. Roux Loupiac.

    Crèche et bibliothèque associative_Image 13
  • Toulouse - 2007
    Consultation

    Reconversion et extension d’une chapelle fin XIXème siècle en 2 équipements autonomes : une bibliothèque et une crèche associative.

    La bibliothèque s’installe dans la chapelle ainsi qu’une partie de la crèche. La chapelle garde ses caractéristiques principales, un double volume jusqu’aux voûtes ainsi que la totalité de ses vitraux qui ont été refaits. La crèche a nécessité une extension : le volume créé, ainsi que le portique en prolongement, permettent un traitement urbain de l’angle de la place.

    Crèche et bibliothèque associative_

    Maître d’ouvrage : Ville de Toulouse.
    Maîtrise d’oeuvre : Atelier 13 mandataire - Bet Betem.
    Surface : 630m².
    Procédure négociée 2004.
    Achèvement 2007.
    Crédit photos : J.-Ph. Loupiac - N. Roux Loupiac.

    Crèche et bibliothèque associative_Image 14
  • Toulouse - 2007
    Consultation

    Reconversion et extension d’une chapelle fin XIXème siècle en 2 équipements autonomes : une bibliothèque et une crèche associative.

    La bibliothèque s’installe dans la chapelle ainsi qu’une partie de la crèche. La chapelle garde ses caractéristiques principales, un double volume jusqu’aux voûtes ainsi que la totalité de ses vitraux qui ont été refaits. La crèche a nécessité une extension : le volume créé, ainsi que le portique en prolongement, permettent un traitement urbain de l’angle de la place.

    Crèche et bibliothèque associative_

    Maître d’ouvrage : Ville de Toulouse.
    Maîtrise d’oeuvre : Atelier 13 mandataire - Bet Betem.
    Surface : 630m².
    Procédure négociée 2004.
    Achèvement 2007.
    Crédit photos : J.-Ph. Loupiac - N. Roux Loupiac.

    Crèche et bibliothèque associative_Image 16