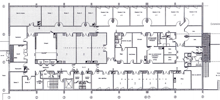
• CHU de Toulouse Rangueil - 1996

    Au sud de Toulouse, à proximité du Centre Spatial, le Centre de médecine spatiale occupe un bâtiment situé dans le CHU de Rangueil. Ce bâtiment de 1000m² va être ré-investi par un programme nouveau : une clinique vouée à l’expérimentation et à la sélection des futurs spationautes.

    La surface, un grand plateau libre, est divisée en 2 zones distinctes : 
    Côté cour, la formation, avec un ensemble de bureaux/cabinets médicaux, un entrepôt et laboratoire modulable pouvant accueillir un simulateur (besoins en télémédecine).
    Côté jardin, l’expérimentation, complètement isolée, comprend 6 chambres à 2 lits pour réaliser les expériences de simulation des effets de l’impesanteur...
    Au centre, l’espace logistique regroupe plusieurs labos, une infirmerie, etc. Une partie est modulable pour devenir labo de tests (fauteuil rotatoire) ou chambres.

    Première exigence : une grande flexibilité pour s’adapter aux différents schémas de fonctionnement et aux demandes des utilisateurs (agences spatiales, spationautes…).
    Un respect strict des spécifications techniques est indispensable aux expériences menées : thermique - acoustique - contrôle de luminosité (noir absolu).

    La maîtrise d’ouvrage est assurée par le MEDES (institut de médecine spatiale) en liaison avec le CNES (Centre National d’Etudes Spatiales) et le CHU de Rangueil.

    MEDES_

    Maître d’ouvrage : CHU Rangueil - CNES / CST.
    Maîtrise d’oeuvre : Atelier 13 mandataire - Bet OTCE.
    Surface : 1000m².
    Achèvement 1996.
    Crédit photos : J.-Ph. Loupiac.

    MEDES_Image 1
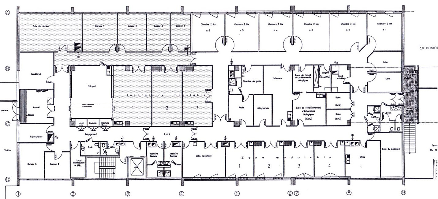
  • CHU de Toulouse Rangueil - 1996

    Au sud de Toulouse, à proximité du Centre Spatial, le Centre de médecine spatiale occupe un bâtiment situé dans le CHU de Rangueil. Ce bâtiment de 1000m² va être ré-investi par un programme nouveau : une clinique vouée à l’expérimentation et à la sélection des futurs spationautes.

    La surface, un grand plateau libre, est divisée en 2 zones distinctes : 
    Côté cour, la formation, avec un ensemble de bureaux/cabinets médicaux, un entrepôt et laboratoire modulable pouvant accueillir un simulateur (besoins en télémédecine).
    Côté jardin, l’expérimentation, complètement isolée, comprend 6 chambres à 2 lits pour réaliser les expériences de simulation des effets de l’impesanteur...
    Au centre, l’espace logistique regroupe plusieurs labos, une infirmerie, etc. Une partie est modulable pour devenir labo de tests (fauteuil rotatoire) ou chambres.

    Première exigence : une grande flexibilité pour s’adapter aux différents schémas de fonctionnement et aux demandes des utilisateurs (agences spatiales, spationautes…).
    Un respect strict des spécifications techniques est indispensable aux expériences menées : thermique - acoustique - contrôle de luminosité (noir absolu).

    La maîtrise d’ouvrage est assurée par le MEDES (institut de médecine spatiale) en liaison avec le CNES (Centre National d’Etudes Spatiales) et le CHU de Rangueil.

    MEDES_

    Maître d’ouvrage : CHU Rangueil - CNES / CST.
    Maîtrise d’oeuvre : Atelier 13 mandataire - Bet OTCE.
    Surface : 1000m².
    Achèvement 1996.
    Crédit photos : J.-Ph. Loupiac.

    MEDES_Image 4
  • CHU de Toulouse Rangueil - 1996

    Au sud de Toulouse, à proximité du Centre Spatial, le Centre de médecine spatiale occupe un bâtiment situé dans le CHU de Rangueil. Ce bâtiment de 1000m² va être ré-investi par un programme nouveau : une clinique vouée à l’expérimentation et à la sélection des futurs spationautes.

    La surface, un grand plateau libre, est divisée en 2 zones distinctes : 
    Côté cour, la formation, avec un ensemble de bureaux/cabinets médicaux, un entrepôt et laboratoire modulable pouvant accueillir un simulateur (besoins en télémédecine).
    Côté jardin, l’expérimentation, complètement isolée, comprend 6 chambres à 2 lits pour réaliser les expériences de simulation des effets de l’impesanteur...
    Au centre, l’espace logistique regroupe plusieurs labos, une infirmerie, etc. Une partie est modulable pour devenir labo de tests (fauteuil rotatoire) ou chambres.

    Première exigence : une grande flexibilité pour s’adapter aux différents schémas de fonctionnement et aux demandes des utilisateurs (agences spatiales, spationautes…).
    Un respect strict des spécifications techniques est indispensable aux expériences menées : thermique - acoustique - contrôle de luminosité (noir absolu).

    La maîtrise d’ouvrage est assurée par le MEDES (institut de médecine spatiale) en liaison avec le CNES (Centre National d’Etudes Spatiales) et le CHU de Rangueil.

    MEDES_

    Maître d’ouvrage : CHU Rangueil - CNES / CST.
    Maîtrise d’oeuvre : Atelier 13 mandataire - Bet OTCE.
    Surface : 1000m².
    Achèvement 1996.
    Crédit photos : J.-Ph. Loupiac.

    MEDES_Image 2
  • CHU de Toulouse Rangueil - 1996

    Au sud de Toulouse, à proximité du Centre Spatial, le Centre de médecine spatiale occupe un bâtiment situé dans le CHU de Rangueil. Ce bâtiment de 1000m² va être ré-investi par un programme nouveau : une clinique vouée à l’expérimentation et à la sélection des futurs spationautes.

    La surface, un grand plateau libre, est divisée en 2 zones distinctes : 
    Côté cour, la formation, avec un ensemble de bureaux/cabinets médicaux, un entrepôt et laboratoire modulable pouvant accueillir un simulateur (besoins en télémédecine).
    Côté jardin, l’expérimentation, complètement isolée, comprend 6 chambres à 2 lits pour réaliser les expériences de simulation des effets de l’impesanteur...
    Au centre, l’espace logistique regroupe plusieurs labos, une infirmerie, etc. Une partie est modulable pour devenir labo de tests (fauteuil rotatoire) ou chambres.

    Première exigence : une grande flexibilité pour s’adapter aux différents schémas de fonctionnement et aux demandes des utilisateurs (agences spatiales, spationautes…).
    Un respect strict des spécifications techniques est indispensable aux expériences menées : thermique - acoustique - contrôle de luminosité (noir absolu).

    La maîtrise d’ouvrage est assurée par le MEDES (institut de médecine spatiale) en liaison avec le CNES (Centre National d’Etudes Spatiales) et le CHU de Rangueil.

    MEDES_

    Maître d’ouvrage : CHU Rangueil - CNES / CST.
    Maîtrise d’oeuvre : Atelier 13 mandataire - Bet OTCE.
    Surface : 1000m².
    Achèvement 1996.
    Crédit photos : J.-Ph. Loupiac.

    MEDES_Image 3