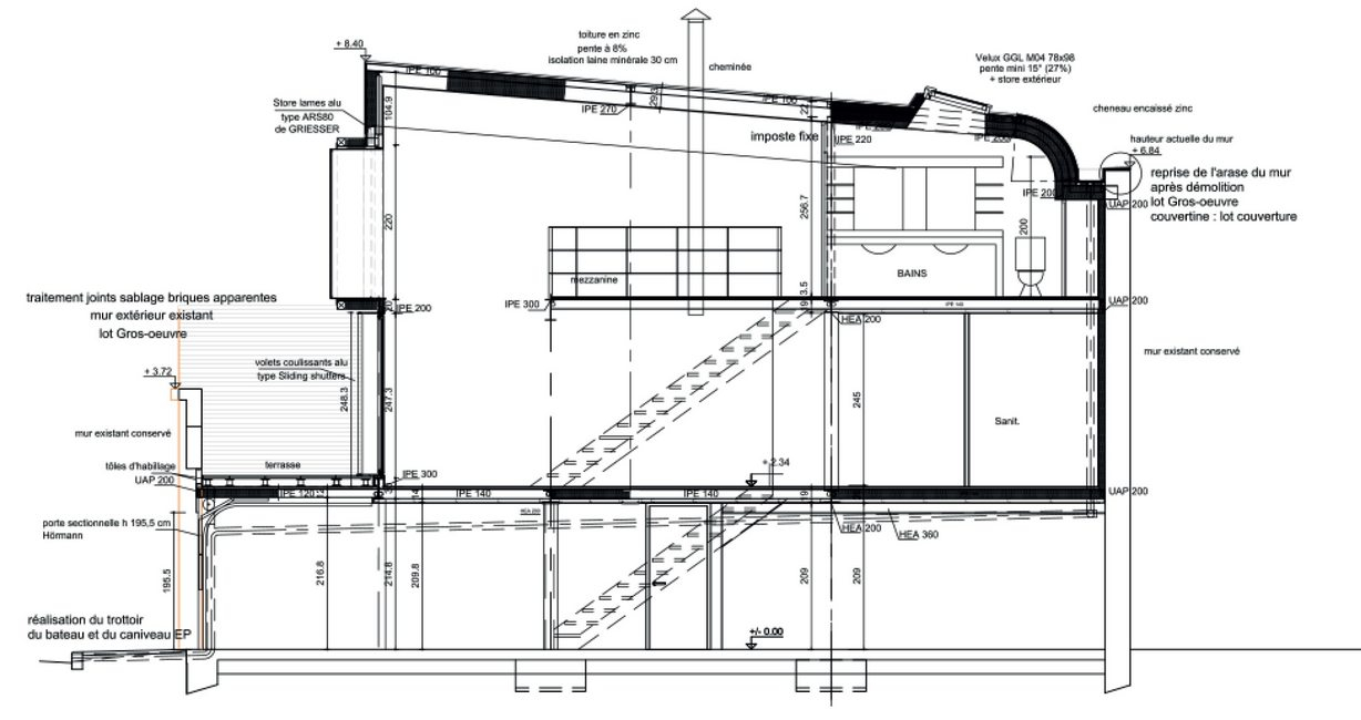
• 25 rue Averseng Delorme, Toulouse - 2011

    Création d’une maison de ville sur l’emprise et le gabarit d’un bâtiment existant faisant office de garage. La parcelle de forme trapézoïdale a une façade sur rue de 6,00m environ, les 3 autres côtés sont mitoyens. Le projet introverti prend la lumière en zénithal et sur un patio intérieur; côté rue il est largement ouvert.

    La maçonnerie est conservée en partie basse. Choix d’une structure métallique enveloppée d’une carapace en zinc - finition à joints debout - le patio, sur 2 niveaux, se protège des vues directes par une paroi de pavés de verre.

    Maison de ville_

    Maître d’ouvrage : privé.
    Maîtrise d’oeuvre : Atelier 13.
    Surface : 140m² hab. / 70m² parking.
    Achèvement 2011.
    Crédit photos : R. Perset.

    Maison de ville_Image 1
  • 25 rue Averseng Delorme, Toulouse - 2011

    Création d’une maison de ville sur l’emprise et le gabarit d’un bâtiment existant faisant office de garage. La parcelle de forme trapézoïdale a une façade sur rue de 6,00m environ, les 3 autres côtés sont mitoyens. Le projet introverti prend la lumière en zénithal et sur un patio intérieur; côté rue il est largement ouvert.

    La maçonnerie est conservée en partie basse. Choix d’une structure métallique enveloppée d’une carapace en zinc - finition à joints debout - le patio, sur 2 niveaux, se protège des vues directes par une paroi de pavés de verre.

    Maison de ville_

    Maître d’ouvrage : privé.
    Maîtrise d’oeuvre : Atelier 13.
    Surface : 140m² hab. / 70m² parking.
    Achèvement 2011.
    Crédit photos : R. Perset.

    Maison de ville_Image 2
  • 25 rue Averseng Delorme, Toulouse - 2011

    Création d’une maison de ville sur l’emprise et le gabarit d’un bâtiment existant faisant office de garage. La parcelle de forme trapézoïdale a une façade sur rue de 6,00m environ, les 3 autres côtés sont mitoyens. Le projet introverti prend la lumière en zénithal et sur un patio intérieur; côté rue il est largement ouvert.

    La maçonnerie est conservée en partie basse. Choix d’une structure métallique enveloppée d’une carapace en zinc - finition à joints debout - le patio, sur 2 niveaux, se protège des vues directes par une paroi de pavés de verre.

    Maison de ville_

    Maître d’ouvrage : privé.
    Maîtrise d’oeuvre : Atelier 13.
    Surface : 140m² hab. / 70m² parking.
    Achèvement 2011.
    Crédit photos : R. Perset.

    Maison de ville_Image 3
  • 25 rue Averseng Delorme, Toulouse - 2011

    Création d’une maison de ville sur l’emprise et le gabarit d’un bâtiment existant faisant office de garage. La parcelle de forme trapézoïdale a une façade sur rue de 6,00m environ, les 3 autres côtés sont mitoyens. Le projet introverti prend la lumière en zénithal et sur un patio intérieur; côté rue il est largement ouvert.

    La maçonnerie est conservée en partie basse. Choix d’une structure métallique enveloppée d’une carapace en zinc - finition à joints debout - le patio, sur 2 niveaux, se protège des vues directes par une paroi de pavés de verre.

    Maison de ville_

    Maître d’ouvrage : privé.
    Maîtrise d’oeuvre : Atelier 13.
    Surface : 140m² hab. / 70m² parking.
    Achèvement 2011.
    Crédit photos : R. Perset.

    Maison de ville_Image 4
  • 25 rue Averseng Delorme, Toulouse - 2011

    Création d’une maison de ville sur l’emprise et le gabarit d’un bâtiment existant faisant office de garage. La parcelle de forme trapézoïdale a une façade sur rue de 6,00m environ, les 3 autres côtés sont mitoyens. Le projet introverti prend la lumière en zénithal et sur un patio intérieur; côté rue il est largement ouvert.

    La maçonnerie est conservée en partie basse. Choix d’une structure métallique enveloppée d’une carapace en zinc - finition à joints debout - le patio, sur 2 niveaux, se protège des vues directes par une paroi de pavés de verre.

    Maison de ville_

    Maître d’ouvrage : privé.
    Maîtrise d’oeuvre : Atelier 13.
    Surface : 140m² hab. / 70m² parking.
    Achèvement 2011.
    Crédit photos : R. Perset.

    Maison de ville_Image 5
  • 25 rue Averseng Delorme, Toulouse - 2011

    Création d’une maison de ville sur l’emprise et le gabarit d’un bâtiment existant faisant office de garage. La parcelle de forme trapézoïdale a une façade sur rue de 6,00m environ, les 3 autres côtés sont mitoyens. Le projet introverti prend la lumière en zénithal et sur un patio intérieur; côté rue il est largement ouvert.

    La maçonnerie est conservée en partie basse. Choix d’une structure métallique enveloppée d’une carapace en zinc - finition à joints debout - le patio, sur 2 niveaux, se protège des vues directes par une paroi de pavés de verre.

    Maison de ville_

    Maître d’ouvrage : privé.
    Maîtrise d’oeuvre : Atelier 13.
    Surface : 140m² hab. / 70m² parking.
    Achèvement 2011.
    Crédit photos : R. Perset.

    Maison de ville_Image 6