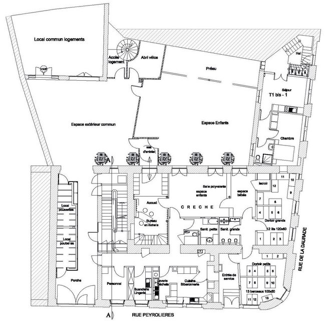
• 31 rue Peyrolières, Toulouse - 2006

    Réhabilitation , reconversion d’un bâtiment XVIe à XVIIIe siècle situé en secteur sauvegardé à Toulouse et destiné à une résidence sociale, une Maison relais et une crèche . La réhabilitation vise une reconversion au niveau des fonctions et une requalification globale :
    - Repérage et valorisation de tous les éléments présentant un intérêt architectural, linteaux pierre, cheminée, murs briques.
    - Réfection de menuiseries ou percements.
    - Démolition puis réfection de planchers (mise en oeuvre d’une chape sèche flottante : Prégychape-Lafarge).

    Programme bâtiment principal : crèche 25 lits, 19 logements soit 13 T1 et T1 bis, 4 T2, 2 T3.
    Bâtiment situé rue de la Daurade : 2 logements, chartreuse un logement et des locaux d’accueil.
     

    Résidence sociale - Maison relais - Crèche_

    Maître d’ouvrage : Secours Catholique - SA Patrimoine.
    Maîtrise d’oeuvre : Atelier 13 mandataire.
    Surface : 1617 m².
    Achèvement 2006.
    Crédit photos : JL. Manaud.

    Résidence sociale - Maison relais - Crèche_Image 1
  • 31 rue Peyrolières, Toulouse - 2006

    Réhabilitation , reconversion d’un bâtiment XVIe à XVIIIe siècle situé en secteur sauvegardé à Toulouse et destiné à une résidence sociale, une Maison relais et une crèche . La réhabilitation vise une reconversion au niveau des fonctions et une requalification globale :
    - Repérage et valorisation de tous les éléments présentant un intérêt architectural, linteaux pierre, cheminée, murs briques.
    - Réfection de menuiseries ou percements.
    - Démolition puis réfection de planchers (mise en oeuvre d’une chape sèche flottante : Prégychape-Lafarge).

    Programme bâtiment principal : crèche 25 lits, 19 logements soit 13 T1 et T1 bis, 4 T2, 2 T3.
    Bâtiment situé rue de la Daurade : 2 logements, chartreuse un logement et des locaux d’accueil.
     

    Résidence sociale - Maison relais - Crèche_

    Maître d’ouvrage : Secours Catholique - SA Patrimoine.
    Maîtrise d’oeuvre : Atelier 13 mandataire.
    Surface : 1617 m².
    Achèvement 2006.
    Crédit photos : JL. Manaud.

    Résidence sociale - Maison relais - Crèche_Image 7
  • 31 rue Peyrolières, Toulouse - 2006

    Réhabilitation , reconversion d’un bâtiment XVIe à XVIIIe siècle situé en secteur sauvegardé à Toulouse et destiné à une résidence sociale, une Maison relais et une crèche . La réhabilitation vise une reconversion au niveau des fonctions et une requalification globale :
    - Repérage et valorisation de tous les éléments présentant un intérêt architectural, linteaux pierre, cheminée, murs briques.
    - Réfection de menuiseries ou percements.
    - Démolition puis réfection de planchers (mise en oeuvre d’une chape sèche flottante : Prégychape-Lafarge).

    Programme bâtiment principal : crèche 25 lits, 19 logements soit 13 T1 et T1 bis, 4 T2, 2 T3.
    Bâtiment situé rue de la Daurade : 2 logements, chartreuse un logement et des locaux d’accueil.
     

    Résidence sociale - Maison relais - Crèche_

    Maître d’ouvrage : Secours Catholique - SA Patrimoine.
    Maîtrise d’oeuvre : Atelier 13 mandataire.
    Surface : 1617 m².
    Achèvement 2006.
    Crédit photos : JL. Manaud.

    Résidence sociale - Maison relais - Crèche_Etat des lieux
  • 31 rue Peyrolières, Toulouse - 2006

    Réhabilitation , reconversion d’un bâtiment XVIe à XVIIIe siècle situé en secteur sauvegardé à Toulouse et destiné à une résidence sociale, une Maison relais et une crèche . La réhabilitation vise une reconversion au niveau des fonctions et une requalification globale :
    - Repérage et valorisation de tous les éléments présentant un intérêt architectural, linteaux pierre, cheminée, murs briques.
    - Réfection de menuiseries ou percements.
    - Démolition puis réfection de planchers (mise en oeuvre d’une chape sèche flottante : Prégychape-Lafarge).

    Programme bâtiment principal : crèche 25 lits, 19 logements soit 13 T1 et T1 bis, 4 T2, 2 T3.
    Bâtiment situé rue de la Daurade : 2 logements, chartreuse un logement et des locaux d’accueil.
     

    Résidence sociale - Maison relais - Crèche_

    Maître d’ouvrage : Secours Catholique - SA Patrimoine.
    Maîtrise d’oeuvre : Atelier 13 mandataire.
    Surface : 1617 m².
    Achèvement 2006.
    Crédit photos : JL. Manaud.

    Résidence sociale - Maison relais - Crèche_Image 6
  • 31 rue Peyrolières, Toulouse - 2006

    Réhabilitation , reconversion d’un bâtiment XVIe à XVIIIe siècle situé en secteur sauvegardé à Toulouse et destiné à une résidence sociale, une Maison relais et une crèche . La réhabilitation vise une reconversion au niveau des fonctions et une requalification globale :
    - Repérage et valorisation de tous les éléments présentant un intérêt architectural, linteaux pierre, cheminée, murs briques.
    - Réfection de menuiseries ou percements.
    - Démolition puis réfection de planchers (mise en oeuvre d’une chape sèche flottante : Prégychape-Lafarge).

    Programme bâtiment principal : crèche 25 lits, 19 logements soit 13 T1 et T1 bis, 4 T2, 2 T3.
    Bâtiment situé rue de la Daurade : 2 logements, chartreuse un logement et des locaux d’accueil.
     

    Résidence sociale - Maison relais - Crèche_

    Maître d’ouvrage : Secours Catholique - SA Patrimoine.
    Maîtrise d’oeuvre : Atelier 13 mandataire.
    Surface : 1617 m².
    Achèvement 2006.
    Crédit photos : JL. Manaud.

    Résidence sociale - Maison relais - Crèche_Image 8
  • 31 rue Peyrolières, Toulouse - 2006

    Réhabilitation , reconversion d’un bâtiment XVIe à XVIIIe siècle situé en secteur sauvegardé à Toulouse et destiné à une résidence sociale, une Maison relais et une crèche . La réhabilitation vise une reconversion au niveau des fonctions et une requalification globale :
    - Repérage et valorisation de tous les éléments présentant un intérêt architectural, linteaux pierre, cheminée, murs briques.
    - Réfection de menuiseries ou percements.
    - Démolition puis réfection de planchers (mise en oeuvre d’une chape sèche flottante : Prégychape-Lafarge).

    Programme bâtiment principal : crèche 25 lits, 19 logements soit 13 T1 et T1 bis, 4 T2, 2 T3.
    Bâtiment situé rue de la Daurade : 2 logements, chartreuse un logement et des locaux d’accueil.
     

    Résidence sociale - Maison relais - Crèche_

    Maître d’ouvrage : Secours Catholique - SA Patrimoine.
    Maîtrise d’oeuvre : Atelier 13 mandataire.
    Surface : 1617 m².
    Achèvement 2006.
    Crédit photos : JL. Manaud.

    Résidence sociale - Maison relais - Crèche_Image 9
  • 31 rue Peyrolières, Toulouse - 2006

    Réhabilitation , reconversion d’un bâtiment XVIe à XVIIIe siècle situé en secteur sauvegardé à Toulouse et destiné à une résidence sociale, une Maison relais et une crèche . La réhabilitation vise une reconversion au niveau des fonctions et une requalification globale :
    - Repérage et valorisation de tous les éléments présentant un intérêt architectural, linteaux pierre, cheminée, murs briques.
    - Réfection de menuiseries ou percements.
    - Démolition puis réfection de planchers (mise en oeuvre d’une chape sèche flottante : Prégychape-Lafarge).

    Programme bâtiment principal : crèche 25 lits, 19 logements soit 13 T1 et T1 bis, 4 T2, 2 T3.
    Bâtiment situé rue de la Daurade : 2 logements, chartreuse un logement et des locaux d’accueil.
     

    Résidence sociale - Maison relais - Crèche_

    Maître d’ouvrage : Secours Catholique - SA Patrimoine.
    Maîtrise d’oeuvre : Atelier 13 mandataire.
    Surface : 1617 m².
    Achèvement 2006.
    Crédit photos : JL. Manaud.

    Résidence sociale - Maison relais - Crèche_Image 10
  • 31 rue Peyrolières, Toulouse - 2006

    Réhabilitation , reconversion d’un bâtiment XVIe à XVIIIe siècle situé en secteur sauvegardé à Toulouse et destiné à une résidence sociale, une Maison relais et une crèche . La réhabilitation vise une reconversion au niveau des fonctions et une requalification globale :
    - Repérage et valorisation de tous les éléments présentant un intérêt architectural, linteaux pierre, cheminée, murs briques.
    - Réfection de menuiseries ou percements.
    - Démolition puis réfection de planchers (mise en oeuvre d’une chape sèche flottante : Prégychape-Lafarge).

    Programme bâtiment principal : crèche 25 lits, 19 logements soit 13 T1 et T1 bis, 4 T2, 2 T3.
    Bâtiment situé rue de la Daurade : 2 logements, chartreuse un logement et des locaux d’accueil.
     

    Résidence sociale - Maison relais - Crèche_

    Maître d’ouvrage : Secours Catholique - SA Patrimoine.
    Maîtrise d’oeuvre : Atelier 13 mandataire.
    Surface : 1617 m².
    Achèvement 2006.
    Crédit photos : JL. Manaud.

    Résidence sociale - Maison relais - Crèche_Image 11