• Toulouse - 1980
    Concours conception-construction

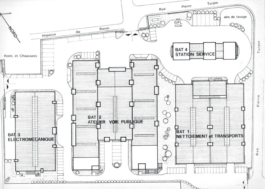
    L’opération est située en milieu urbain et jouxte un programme de 500 logements collectifs et de bureaux. Le programme comporte divers bâtiments :
    - L’atelier Voie Publique : 6700 m²,
    - L’atelier Électro-mécanique : 4060 m²,
    - L’atelier Nettoiement Transports : 4238 m²,
    - La station service : 624 m²,
    - Total : 15 622 m² utiles.

    L’intégration de ce programme en milieu urbain, le territoire exigu affecté au projet et la fonctionnalité exigée ont guidé les choix.
    Le thème du biais se décline sur les socles ou soubassements, les acrotères, les éléments de verrières. Les bâtiments respectent les alignements, et un vocabulaire commun se développe à travers les 4 bâtiments par le biais des formes et des matériaux : béton, bardage, acier.

    Ateliers municipaux_

    Maître d’ouvrage : Ville de Toulouse.
    Maîtrise d’oeuvre : Atelier 13.
    Surface : 15622 m² utiles.
    Concours - Conception - Construction : 1980.
    Achèvement 1981.
    Crédit photos : J.-Ph. Loupiac.

    Ateliers municipaux_Image 1
  • Toulouse - 1980
    Concours conception-construction

    L’opération est située en milieu urbain et jouxte un programme de 500 logements collectifs et de bureaux. Le programme comporte divers bâtiments :
    - L’atelier Voie Publique : 6700 m²,
    - L’atelier Électro-mécanique : 4060 m²,
    - L’atelier Nettoiement Transports : 4238 m²,
    - La station service : 624 m²,
    - Total : 15 622 m² utiles.

    L’intégration de ce programme en milieu urbain, le territoire exigu affecté au projet et la fonctionnalité exigée ont guidé les choix.
    Le thème du biais se décline sur les socles ou soubassements, les acrotères, les éléments de verrières. Les bâtiments respectent les alignements, et un vocabulaire commun se développe à travers les 4 bâtiments par le biais des formes et des matériaux : béton, bardage, acier.

    Ateliers municipaux_

    Maître d’ouvrage : Ville de Toulouse.
    Maîtrise d’oeuvre : Atelier 13.
    Surface : 15622 m² utiles.
    Concours - Conception - Construction : 1980.
    Achèvement 1981.
    Crédit photos : J.-Ph. Loupiac.

    Ateliers municipaux_Image 7
  • Toulouse - 1980
    Concours conception-construction

    L’opération est située en milieu urbain et jouxte un programme de 500 logements collectifs et de bureaux. Le programme comporte divers bâtiments :
    - L’atelier Voie Publique : 6700 m²,
    - L’atelier Électro-mécanique : 4060 m²,
    - L’atelier Nettoiement Transports : 4238 m²,
    - La station service : 624 m²,
    - Total : 15 622 m² utiles.

    L’intégration de ce programme en milieu urbain, le territoire exigu affecté au projet et la fonctionnalité exigée ont guidé les choix.
    Le thème du biais se décline sur les socles ou soubassements, les acrotères, les éléments de verrières. Les bâtiments respectent les alignements, et un vocabulaire commun se développe à travers les 4 bâtiments par le biais des formes et des matériaux : béton, bardage, acier.

    Ateliers municipaux_

    Maître d’ouvrage : Ville de Toulouse.
    Maîtrise d’oeuvre : Atelier 13.
    Surface : 15622 m² utiles.
    Concours - Conception - Construction : 1980.
    Achèvement 1981.
    Crédit photos : J.-Ph. Loupiac.

    Ateliers municipaux_Image 2
  • Toulouse - 1980
    Concours conception-construction

    L’opération est située en milieu urbain et jouxte un programme de 500 logements collectifs et de bureaux. Le programme comporte divers bâtiments :
    - L’atelier Voie Publique : 6700 m²,
    - L’atelier Électro-mécanique : 4060 m²,
    - L’atelier Nettoiement Transports : 4238 m²,
    - La station service : 624 m²,
    - Total : 15 622 m² utiles.

    L’intégration de ce programme en milieu urbain, le territoire exigu affecté au projet et la fonctionnalité exigée ont guidé les choix.
    Le thème du biais se décline sur les socles ou soubassements, les acrotères, les éléments de verrières. Les bâtiments respectent les alignements, et un vocabulaire commun se développe à travers les 4 bâtiments par le biais des formes et des matériaux : béton, bardage, acier.

    Ateliers municipaux_

    Maître d’ouvrage : Ville de Toulouse.
    Maîtrise d’oeuvre : Atelier 13.
    Surface : 15622 m² utiles.
    Concours - Conception - Construction : 1980.
    Achèvement 1981.
    Crédit photos : J.-Ph. Loupiac.

    Ateliers municipaux_Image 3
  • Toulouse - 1980
    Concours conception-construction

    L’opération est située en milieu urbain et jouxte un programme de 500 logements collectifs et de bureaux. Le programme comporte divers bâtiments :
    - L’atelier Voie Publique : 6700 m²,
    - L’atelier Électro-mécanique : 4060 m²,
    - L’atelier Nettoiement Transports : 4238 m²,
    - La station service : 624 m²,
    - Total : 15 622 m² utiles.

    L’intégration de ce programme en milieu urbain, le territoire exigu affecté au projet et la fonctionnalité exigée ont guidé les choix.
    Le thème du biais se décline sur les socles ou soubassements, les acrotères, les éléments de verrières. Les bâtiments respectent les alignements, et un vocabulaire commun se développe à travers les 4 bâtiments par le biais des formes et des matériaux : béton, bardage, acier.

    Ateliers municipaux_

    Maître d’ouvrage : Ville de Toulouse.
    Maîtrise d’oeuvre : Atelier 13.
    Surface : 15622 m² utiles.
    Concours - Conception - Construction : 1980.
    Achèvement 1981.
    Crédit photos : J.-Ph. Loupiac.

    Ateliers municipaux_Image 4
  • Toulouse - 1980
    Concours conception-construction

    L’opération est située en milieu urbain et jouxte un programme de 500 logements collectifs et de bureaux. Le programme comporte divers bâtiments :
    - L’atelier Voie Publique : 6700 m²,
    - L’atelier Électro-mécanique : 4060 m²,
    - L’atelier Nettoiement Transports : 4238 m²,
    - La station service : 624 m²,
    - Total : 15 622 m² utiles.

    L’intégration de ce programme en milieu urbain, le territoire exigu affecté au projet et la fonctionnalité exigée ont guidé les choix.
    Le thème du biais se décline sur les socles ou soubassements, les acrotères, les éléments de verrières. Les bâtiments respectent les alignements, et un vocabulaire commun se développe à travers les 4 bâtiments par le biais des formes et des matériaux : béton, bardage, acier.

    Ateliers municipaux_

    Maître d’ouvrage : Ville de Toulouse.
    Maîtrise d’oeuvre : Atelier 13.
    Surface : 15622 m² utiles.
    Concours - Conception - Construction : 1980.
    Achèvement 1981.
    Crédit photos : J.-Ph. Loupiac.

    Ateliers municipaux_Image 5
  • Toulouse - 1980
    Concours conception-construction

    L’opération est située en milieu urbain et jouxte un programme de 500 logements collectifs et de bureaux. Le programme comporte divers bâtiments :
    - L’atelier Voie Publique : 6700 m²,
    - L’atelier Électro-mécanique : 4060 m²,
    - L’atelier Nettoiement Transports : 4238 m²,
    - La station service : 624 m²,
    - Total : 15 622 m² utiles.

    L’intégration de ce programme en milieu urbain, le territoire exigu affecté au projet et la fonctionnalité exigée ont guidé les choix.
    Le thème du biais se décline sur les socles ou soubassements, les acrotères, les éléments de verrières. Les bâtiments respectent les alignements, et un vocabulaire commun se développe à travers les 4 bâtiments par le biais des formes et des matériaux : béton, bardage, acier.

    Ateliers municipaux_

    Maître d’ouvrage : Ville de Toulouse.
    Maîtrise d’oeuvre : Atelier 13.
    Surface : 15622 m² utiles.
    Concours - Conception - Construction : 1980.
    Achèvement 1981.
    Crédit photos : J.-Ph. Loupiac.

    Ateliers municipaux_Image 6